风电工程
1 湖南某⻛电场⻛机基础施⼯冷缝缺陷处理工程
该项⽬⻛电场单台⻛机2MW,由于恶劣天⽓、路况等原因,基础分两次浇筑完成。⻛机基础⼀⼆次混凝⼟浇筑结合⾯存在明显缺陷,台柱与翼缘板结合部出现蜂窝⿇⾯,完整性不满⾜设计与验收规范要求。
采⽤混凝⼟缺陷修补及⾃锁锚杆进⾏加固,⾃锁锚杆穿过结合⾯,在分层处将两部分连成整体。根据计算结果,基础靠近台柱的内圈部分应⼒较⼤,其他区域则应⼒较⼩,因此锚杆的分布设计靠近台柱的内圈部分较密,⽽外圈其他区域则较疏。
图1 湖南某⻛电场⻛机基础施⼯冷缝缺陷处理
2 鄄城⻛机混塔转接段修复和补强⼯程
鄄城⻛电场项⽬38号、40号机位塔⾼140m,由4段预制塔段、转接段、钢塔段组成,搭载海装2.5MW叶轮直径140m⻛电机组,于2020年11⽉安装结束。2020年10⽉检修⼈员发现鄄城项⽬38号、40号机位塔筒转接环内侧区域出现裂缝及混凝⼟崩裂现象,外侧区域严重受损,出现混凝⼟⼤⾯积脱落现象,同时C4段构件亦存在不同程度裂缝及混凝⼟崩裂脱落。本次受委托⽅要求仅对受损的转接段和第四段塔筒病害进⾏修复和补强处理。处理⽅案为:对转接段内外侧外包钢板并在钢板与混凝⼟结构形成的空腔中浇筑⾼强灌浆料,采⽤JCZ-MG-20扩孔⾃锁锚杆植⼊原结构与内、外侧加固钢板连接。
图2 鄄城⻛机混塔转接段修复和补强
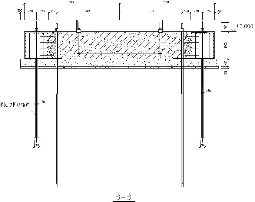
3 山东五莲风电场基础加固工程
该⻛场发电机组共33台,装机总容量49.5MW。⻛机基础采⽤P&H岩⽯锚杆⻛机基础技术。项⽬于2013年12⽉30⽇投产发电,运⾏过程中发现部分⻛机基础原设计的18根50mm岩⽯预应⼒锚杆出现数量不等的断裂情况,经专家论证,原锚杆断裂主要是疲劳荷载导致。
结合专家意⻅及相关技术资料并根据现场实际情况,对⻛机基础进⾏加固处理。⾸先对原⻛机基础采取加⼤截⾯法进⾏加固,然后在基础扩⼤区域增加18根岩⽯预应⼒锚索进⾏加固。预应⼒锚索底部采⽤扩孔⾃锁锚固技术。
图3 山东五莲风电场自锁锚杆


