建(构)物顶升纠偏加固(顶升纠偏与平移)
一、适用范围
建(构)筑物顶升、纠偏主要解决由于地基沉降、偶然荷载、工程事故等原因导致建(构)筑物结构产生倾斜的情况,传统的纠偏方式主要有:迫降法、顶升发、综合法等。其中迫降法和综合法受限于场地条件和建筑物体型限制,且存在诸多不确定因素,在实际工程中采用顶升法进行建(构)物顶升纠偏为较常规和适用的方法。
二、设计依据
《建筑结构荷载规范》(GB5009-2012)
《建筑结构可靠度设计统一标准》(GBJ50068-2001)
《混凝土结构设计规范》(GB50010-2010)
《混凝土结构加固设计规范》(GB 50367-2013)
《混凝土结构后锚固技术规程》(JGJ 145-2013)
《建筑结构加固工程施工质量验收规范》(GB50550-2010)
《既有建筑地基基础加固技术规范》(JGJ123-2012)
《锚杆静压桩技术规程》(YBJ227-91)
《建筑地基基础设计规范》(GB50007-2011)
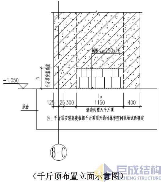
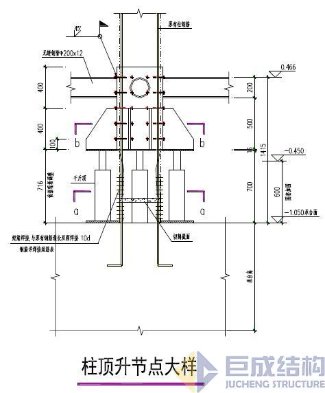
三、加固大样
四、设计范例:
龙马新居纠偏加固施工图 下载
- 上一篇: 建(构)物平移设计(顶升纠偏与平移)
- 下一篇: 水工闸墩、构筑物改造设计(水利与水力发电)


