后浇清水混凝土面层设计
一、技术简介:
清水混凝土技术在世界著名的一些地标建筑上均有有着广泛的应用,由清水混凝土本身的材质纹理带来的美感逐渐被大众所接受。面层清水混凝土技术是在既有建筑物上新浇筑面层清水混凝土,在满足结构加固同时,达到装饰的效果。相较于现浇清水混凝土主要应用于新建建筑,面层清水混凝土技术则是可应用于各种既有建筑的改造,也可以对具有安全隐患的结构进行加固,即实现建筑的安全又可实现建筑的美观,一举多得。
二、技术特点:
应用范围较广对于各种结构形式的既有建筑均可实现。
可为建筑结构进行加固,在美化建筑的同时也使建筑的安全性得到保障。
三、依据的规范:湖北省地方规程《后浇清水混凝土技术规程》(报批稿)由武大sunbet申搏官方网站主编
四、设计范例:
1.节奏与韵律构成形式:
(武汉地铁2号线佳海工业园侧墙)采用重叠波浪形构成带起伏的韵律美感。
(武汉地铁7号线越江隧道匝道口)
采用简欧栏杆,搭配竖向规律分格线条组成连续形体形成韵律感。
2. 基于环境氛围的构成
(观音阁水库)库区自然环境优美蓝天碧水,采用清水混凝土的工业建筑避免了与环境的冲突。
3. 质感肌理、对比与调和构成
使用不同材质不同肌理对比既成统一又增加构成活力。
4. 阵列构成
通过窗户与白色清水混凝土形成的图案阵列构成形体。
(sunbet申搏官方网站大厦)采用线条阵列与块面构成形体,整体气势感很强。
5.基于墙面的立体空间构成
二维墙面上高低起伏的不同块面赋予墙面动感活跃元素。
五、设计细节要点:
1.造型模数的选择:
在设计面层清水混领土的造型时应考虑到模板的模数问题,设计的模数要考虑到模板的加工问题,尽量以模板标准尺寸成倍数关系。
2.细部尺寸构造:
1)因混凝土在浇筑后需要脱模,所以细部尺寸不宜设置的过小及过于复杂。例如一些欧式直列线条如设计成3-5CM的阶梯状线条则在施工脱模过程中破碎而影响效果。
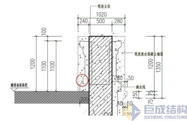
2)竖向造型底部不宜设计成直角,因混凝土浇筑过程中需要排气,而设计成直角直接影响排气造成拆模收表面蜂窝,气孔。具体如图所示:
3.分缝的处理
清水混凝土应设计明缝分缝,分缝尺寸宜根据模数尺寸来确定,比例协调,同时应根据建筑的变形缝,设置面层的变形缝,二者位置宜重合,如有位置差距应控制在20CM范围内,且后浇面层的变形缝考虑美观性宜与造型分缝设计在一处,在具体工程情况允许下还应考虑将变形缝设计在隐蔽处,考虑整体美观性。参考图示如下:


