面贴式止水带技术
一、适用范围:
新、老水工结构渡槽、建(构)筑物止水构造失效,无法将镶嵌在结构内部的止水拆除后更换,在结构表面(迎水面或背水面)重新做面贴止水构造;
二、设计依据
《建筑结构荷载规范》(GB5009-2012)
《建筑结构可靠度设计统一标准》(GBJ50068-2001)
《混凝土结构设计规范》(GB50010-2010)
《混凝土结构加固设计规范》(GB 50367-2013)
《混凝土结构后锚固技术规程》(JGJ 145-2013)
《水工建筑物止水带技术规范》(DL/T5215-2005)
《高分子防水材料 第2部分:止水带》(GB 18173.2-2014)
《工程结构加固材料安全性鉴定技术规范》(GB50728-2011)
三、应用范例
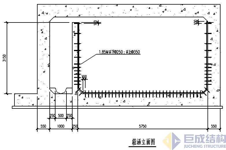
1、箱涵面贴止水带范例:
2、隧道面贴止水带范例:
3、渡槽面贴止水带范例:
四、施工工序:
1、箱涵、隧道面贴止水带施工工艺:
1)将伸缩缝100mm深度内聚硫密封膏及聚苯乙烯硬质泡沫板全部清理干净,并对不规律沉降缝进行凿除或修补,保证伸缩缝达到宽20mm*深100mm尺寸要求;
2)沿伸缩缝两边25mm采用角磨机打磨平整,然后采用环氧砂浆修平,在修复平整后基面上,涂刷一层界面剂,包括20mm宽聚氨酯胶泥表面涂刷;
3)界面剂晾干后,往伸缩缝内填充50mm深遇水膨胀止水条;外部50mm采用聚氨酯胶泥进行填塞,必须保证遇水膨胀止水条与内壁部分缝隙内填塞饱满;
4)锚栓安装后对槽体清理干净,再涂刷一次界面剂。
5)对钢压条及橡胶止水板进行定位放线,钻孔。
6)安装橡胶止水板,边涂刷粘钢胶边将橡胶止水板压在基面上。
7)密封处理,对于橡胶板与混凝土间隙处,挤出粘钢胶的要将其抹平,没有挤出粘钢胶的,涂刷粘钢胶,将橡胶止水板边封住。
8)在已结构缝两边已安装完成的止水带及压片、螺栓外侧浇筑30厚聚合物砂浆(内配钢丝网)防护。
2、渡槽内壁面贴止水带施工工艺:
1、渡槽面贴止水带施工工艺:
1)切槽.
2)基面休整修整
3)不锈钢螺栓安装.
4)止水带安装。
5)止水带压板制作及安装。
6)向凹槽内填充聚合物砂浆并养护。
7)结构缝两侧沿缝涂抹防护材料。
五、工程案例
箱涵、倒虹吸止水做法一 下载
箱涵、倒虹吸止水做法二 下载
箱涵面贴止水带01 下载
箱涵面贴止水带02 下载
渡槽止水带做法01 下载
渡槽止水带做法02 下载
- 上一篇: 粘结型钢加固技术
- 下一篇: 水工混凝土抗冲耐磨修补技术


